미용실 인테리어,
제가 예전 1년 차일 때 다니던 회사 과장님이 미용실 인테리어디자인을 잡을 때 서포트 한 적이 있었거든요? 그 후로 아쉽게도 미용실 인테리어는 해본 적이 없었는데 오랜만에 개인 작업을 미용실 인테리어로 해봤어요.
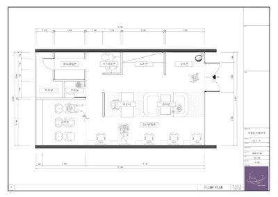
20평대의 1인 미용실 인테리어 평면도

평수는 대략 20평대로 잡았어요. 요즘 1인 미용실이 많이 생기는 추세이기도 하고 예약제로 운영하는 곳이 대다수이기 때문에 1인 샵을 준비하시는 분들에게 도움이 되었으면 좋겠다는 취지해서 레이아웃을 잡아보았습니다.
저는 개인적으로 미용실은 손님들이 머리하는 공간이 잘 보여야 된다고 생각하기 때문에 파사드는 통유리로 하는 것을 선호합니다.
2층이나 3층에 있어도 대부분 유리에 그래픽 작업만 하기 때문에 통유리를 그대로 살리는 것이 대부분 좋습니다.
오른쪽 끝에 여닫이문을 배치하였는데요. 문을 열고 들어오면 바로 포토존이 보입니다. 머리를 하기 전후를 사진으로 남기시는 분들도 많이 계시기 때문에 들어오는 입구 쪽에 포토존을 작게 배치하였습니다.
포토존을 지나면 락커존이있는데요. 손님들의 옷과 가방들을 편리하게 보관할 수 있게 라커룸을 배치했습니다.
중앙에는 카운터와 휴게존을 배치하여 지나가는 사람들로 하여금 한 번 더 눈길이 가도록 배치하였습니다.
스타일링존과 샴푸존은 최대한 밖에서 보이도록 오픈형 스타일로 배치하여 머리를 하는 손님들을 밖에서 보고 구매 욕구를 불러일으키도록 하였습니다.
나머지 화장실과 직원실, 재료세팅존, 기구배치존은 공간 특성상 프라이버시를 지켜주기 위해 가벽을 사용하여 공간 분리를 해주었습니다.

파사드 간판에 블랙 백판과 핑크 로고를 배색하여 시크하면서도 사랑스러운 스타일링을 다양하게 할 수 있는 미용실이라는 걸 어필하기 위해 블랙과 핑크의 색상을 사용하였습니다.
일자 led 조명을 배치하여 공간을 넓어 보이는 효과를 주다


전반적으로 현대적으로 많이 사용하는 빈티지하면서 심플함이 돋보이는 노출 콘크리트로 공간을 마감하고 핑크와 블랙을 포인트로 배색하여 세련된 공간을 연출하였습니다.
조명은 일자 led 조명을 가로로 배치하여 공간을 가로로 넓어 보이게 하는 효과를 주었는데요.
세로 형태로 공간이 길기 때문에 이를 보안하기 위해서는 가로로 led 조명을 배치하면 가로 공간이 좁아 보이는 단점을 보완할 수 있습니다.


포토존에는 조명이 달린 핑크색 거울 배치하여 사랑스러운 느낌을 더해주었습니다.
락커존은 스테인리스로 마감하여 세련된 헤어샵의 느낌을 주고, 내부 공간의 바닥과 천장, 벽면의 색상이 노출 콘크리트 마감이기 때문에 같은 그레이 계열이라는 점에서 공간의 통일성을 주었습니다.

카운터와 휴게존에는 핑크색 카펫으로 마감하고 비비드 한 블루 소파를 배치하여 감각적인 분위기를 연출하였습니다.
카운터는 락커존과 마찬가지로 스테인리스로 마감하여 공간의 통일성과 세련된 느낌을 동시에 주었습니다.
시크함과 러블리함이 공존하는 공간

스타일링존의 거울에는 핑크색 의자에는 블랙으로 마감하여 시크함과 러블리함이 동시에 존재한다는 브랜드의 아이덴티티를 부각시켜주었습니다.


샴푸존에는 미용실에서 사용하는 제품들을 디스플레이 해주고, 머리를 감는 공간이 시각적으로 고급스러운 느낌을 표현해 주기 위해 바닥과 의자의 색상을 같은 블랙으로 마감하여 시크한 느낌을 주었습니다.
카운터 뒤에는 지나다닐 수 있는 통로입니다.
화장실이나 재료세팅존 혹은 미용기구를 편안하게 옮길 수 있게 뒤에 배치하였습니다.